Festschrift 2007 - page 50

50
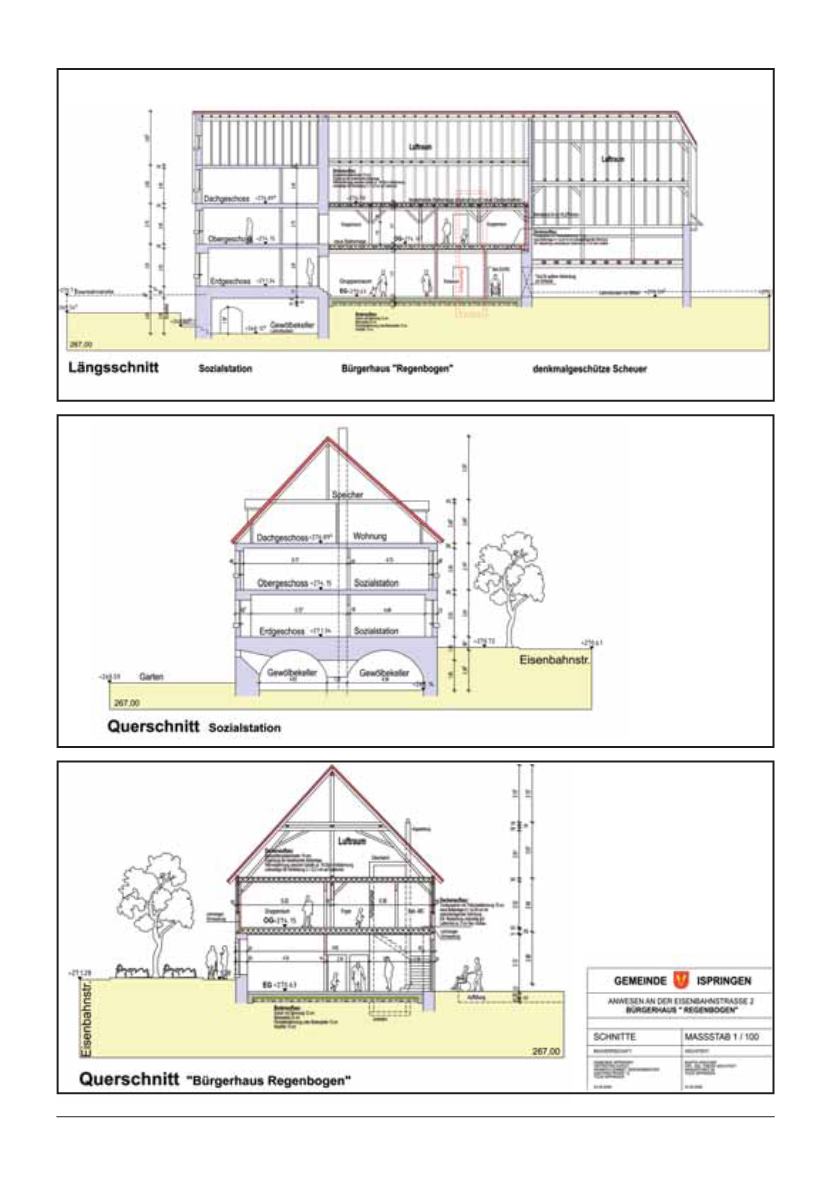
Bürgerhaus Regenbogen Ispringen
Querschnitte
1...,40,41,42,43,44,45,46,47,48,49 51,52,53,54,55,56,57,58,59,60,...114
Powered by FlippingBook